Projek Rumah Makmur di Daerah Lipis

RUMAH MAKMUR TANJUNG GAHAI, MUKIM BATU YON, DAERAH LIPIS, NEGERI PAHANG - PEMAJU NILAITEK (M) SDN. BHD.

Kongsi
Butiran Hartanah
Skim: Rumah Makmur
Pemaju: NILAITEK (M) SDN. BHD.
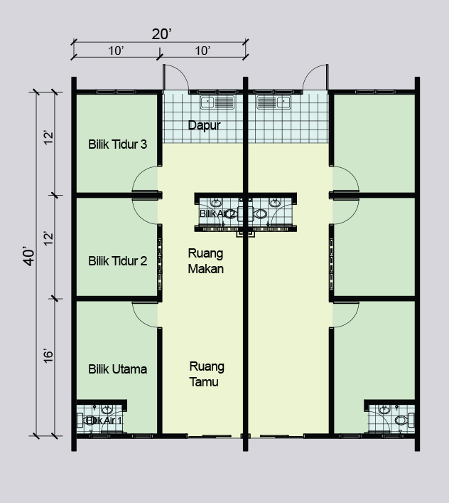
Jenis Rumah: Satu (1) Unit Jenis Rumah Teres Satu (1) Tingkat
Status: Siap
Kelulusan projek pada 2019
Dijangka siap pada 2024
Syarat Kelayakan
Jumlah pendapatan seisi rumah tidak melebihi RM5,000.00 sebulan
Tidak memiliki tanah (syarat tanah: Bangunan) atau rumah atau kedua-duanya sekali yang didaftarkan di atas nama pemohon atau suami/isteri pemohon.
1. Warganegara Malaysia dan keutamaan kepada rakyat Kebawah Duli Paduka Baginda Sultan Pahang;
2. Jumlah pendapatan seisi rumah tidak melebihi RM5,000.00 sebulan;
3. Tidak mempunyai tanah (syarat tanah: Bangunan) atau rumah atau kedua-duanya sekali yang didaftarkan di atas nama pemohon atau suami/isteri pemohon;
4. Tidak pernah diberikan pemilikan rumah kos rendah (Kerajaan/Swasta) atau kos sederhana rendah;
5. Bukan seorang peserta di bawah Rancangan Pembangunan Tanah atau Rancangan Penempatan Semula yang dianjurkan oleh Kerajaan;
6. Telah menetap dan tinggal di Negeri Pahang secara terus menerus selama tidak kurang daripada lima (5) tahun dan;
7. Pemohon atau suami/isteri pemohon tidak pernah dibatalkan pendaftaran permohonan sebelum ini kerana didapati memberi keterangan palsu.

 

Pemaju
NILAITEK (M) SDN. BHD.
164, JALAN TELUK SISEK, 25000, PAHANG.
09-5156688
Projek Berdekatan
Lihat semua >
Semak Skim Yang Anda Layak
Mana satu skim untuk saya?
Masukkan pendapatan seisi rumah untuk dapatkan ringkasan kelayakan skim.
*Jumlah pendapatan seisi keluarga termasuk tanggungan.
Skim anda layak mohon
Rumah Rakyat Pahang
Skim anda layak mohon
PR1MA
Calculator House